La Casa Onda Verde - Retiro arquitetônico natural em um cenário fabuloso cercado pela mais bela natureza
- $119,000
La Casa Onda Verde - Retiro arquitetônico natural em um cenário fabuloso cercado pela mais bela natureza
- $119,000
Visão geral
- 1
- 1
- 900 m²
- 1
- 83 m²
- HV-105
- 2025
Descrição
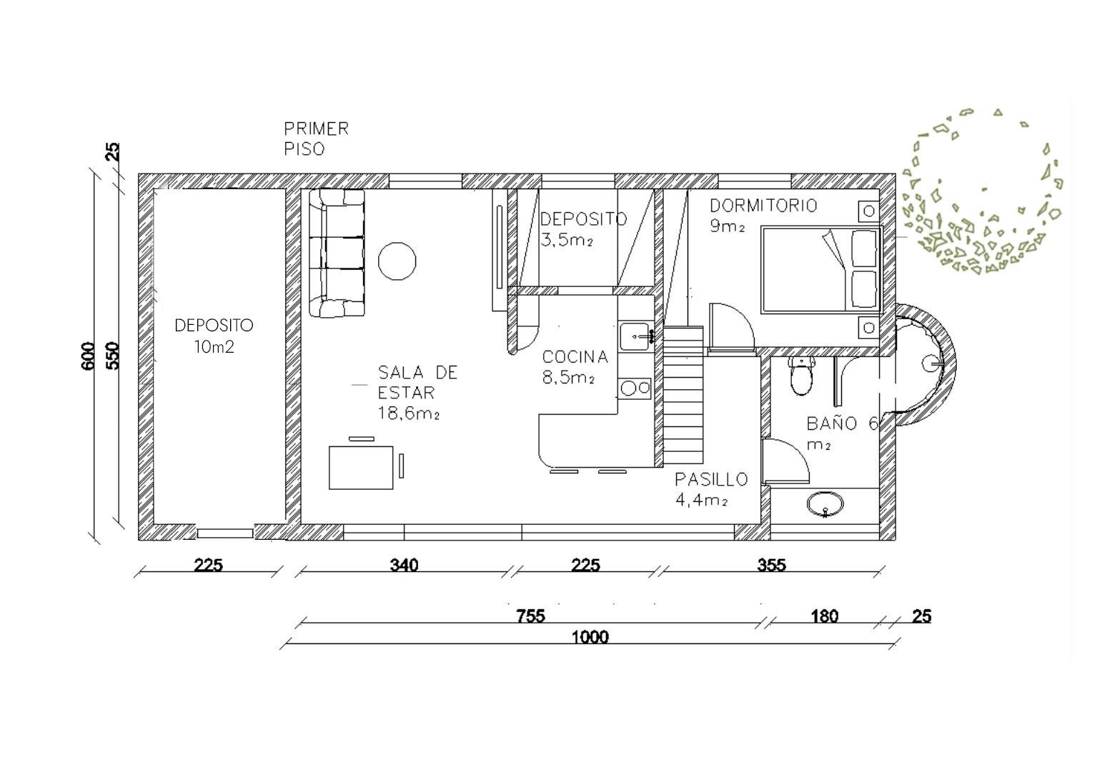
No centro de um Conjunto habitacional moderno, que ama a natureza é criada uma casa que combina harmoniosamente arquitetura, conforto e materiais naturais de alta qualidade.
La Casa Onda Verde inclui 83 m² de área útil em um Propriedade de 900 m² na primeira área já desenvolvida do Complexo residencial ecológico. A construção sólida de argila, o telhado ondulado verde e a linguagem de design suavemente fluida criam um ambiente saudável e único.
✨ A propriedade foi construída com um alto padrão de qualidade - uma clara diferença em relação a muitos edifícios novos convencionais no Paraguai.
💥 O preço de €103.000 resulta de um descarte oportuno e representa um Oferta extremamente atraente para uma propriedade recém-construída desse tipo e qualidade.
Endereço
- Cidade: Emboscada
- Estado: Cordilheira
- País: Paraguai
Detalhes
- ID do setor imobiliário HV-105
- Preço $119,000
- Espaço de convivência 83 m²
- Área do lote 900 m²
- Quarto de dormir 1
- Quarto 1
- Banheiro 1
- Ano de fabricação 2025
- Tipo de imóvel Propriedade
- Status da propriedade Para a compra
- Paraguai Imobiliária
















